Luxurious Modern Architecture

Modern architecture meets luxury in this to-be-built home in Freestone Development. Featuring a gourmet kitchen, private primary suite, and sweeping mountain views, with access to 35+ acres of common space.

Luxurious Modern Architecture

Nhn Spinner Fall Way LOT 25, Missoula, MT 59808
$ 1,778,500
overview
3 Bed
4 Bath
2,909 sqft
Property Type:
Residential
Lifestyle:
N/A
Lot Size:
0.69 Acres
description

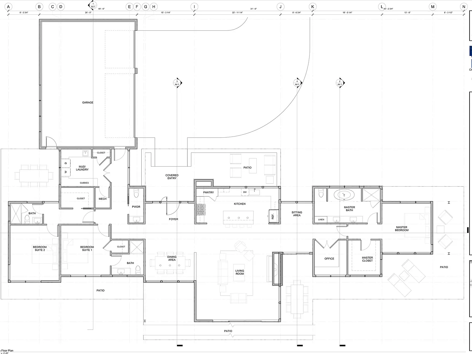
Modern architecture and luxury are perfectly combined in this contemporary-style, to-be-built home, located in the exclusive Freestone Development. This property offers access to 35+ acres of common space and gorgeous views of the surrounding mountains. Designed by Nic Cole of NC Design Studios, the home welcomes you with a covered entry that leads into an open-concept floor plan, seamlessly connecting the gourmet chef’s kitchen, spacious living room, and formal dining area.

The kitchen showcases sweeping countertops, high-end appliances, a large pantry, and a generous center island with an eating bar. The expansive primary suite—set in its own private wing of the home—features large windows that fill the space with natural light, an oversized walk-in closet, and a spa-like bathroom complete with a double vanity, soaking tub, and walk-in shower.

Additional highlights of this well-designed floor plan include two additional ensuite bedrooms, a mudroom with washer and dryer off the three-car garage, a large office, and a powder room. Ample patio space creates the perfect setting for entertaining guests while enjoying sweeping views of the surrounding landscape.

Matterport Tour
N/A
MLS #
30056178
SOC
N/A
Share this Listing

In Partnership With Luxx

Meet Revel’s official concierge home watch partner.